1066 Bryant Street, San Francisco, CA 94103
- 4 beds |
- 6 baths |
- 6,600 sqft
Single-Family Home
Built in 1906
2,522sqft lot
4 car garage
$454/sqft
Listed 3 months ago
Property Description
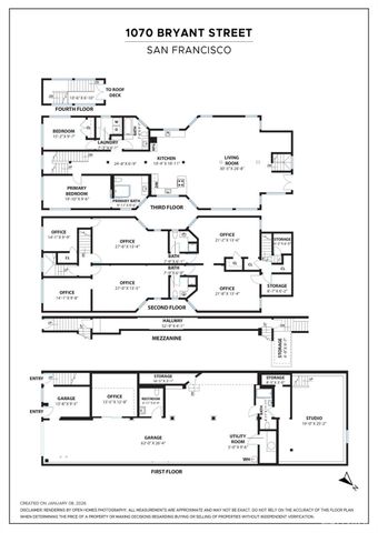
There is a certain kind of building that is associated only with creative, sophisticated city living - the live/work loft. They are occupied by sculptors, spooks and superheros. Going back in time to great San Francisco movies like Francis Ford Coppola's neo-noir masterpiece The Conversation, Robert Redford's suspenseful Sneakers, the artsy The Competition, or the family favorite NYC classic with Tom Hanks BIG, lofts embody a romantic, creative and urban lifestyle that cannot be achieved by any other type of home. The question is, if you had the space, what would you create? This VACANT live/work building is ready to help you. Starting from the ground level there is a huge 4+ car garage with laundry and bath, entry foyer and skylit rear commercial suite with a full bath. The 2nd level features two twin four room commercial suites each with a full bath. The top level is a stunning residence with panoramic city views, gleaming wood floors, two bedrooms and two full baths with sexy glass brick shower enclosures, a gourmet open kitchen and a full laundry. To top it all off, stairs flooded with light lead up to a greenhouse style pent room that opens to a huge roof deck with even more amazing city views. Come see for yourself and get ready to launch your imagination!
- Listing Status:
- Pending
- Date Added:
- January 15, 2026
- Data Last Updated:
- April 16, 2026 at 9:30PM
- Listing Office:
- KW Advisors : 415-483-9285
- Listing Agent:
- Jennifer Rosdail : (415) 237-1038
- MLS ID:
- 426096180

- Appliances: Built-In RefrigeratorDishwasherFree Standing Gas Range
- Laundry: Dryer IncludedGround FloorIn GarageWasher Included
- Fireplace: Fireplaces: 0
- Parking: 24'+ Deep GarageGarage Facing FrontInterior AccessRV PossibleTandem GarageWorkshop in GarageParking spaces: 4
- HOA Amenities: 0.0
- Originating MLS: San Francisco
- County: San Francisco
- Zoning: 3757-032
- Source: San Francisco
This listing courtesy of Jennifer Rosdail , KW Advisors
Monthly Payment
- Principal & Interest $
- Property Taxes $
- Home Insurance $
- VA Funding Fee $
Location
Schools Nearby
Carmichael (Bessie)/Fec
375 7th St, San Francisco, CA, 94103
Grades KG-8
0.32 miles away
Carmichael (Bessie)/Fec
375 7th St, San Francisco, CA, 94103
Grades KG-8
0.32 miles away
Downtown High School
693 Vermont St, San Francisco, CA, 94107
Grades 9-12
0.75 miles away
